【居間・リビング】新規リノベーションマンションにつき快適に新生活をスタートできます
- 専有面積
- 66.53㎡
- 築年月
- 1996年3月(築30年)
-
バストイレ別
-
TVモニタ付きインターホン
-
浴室乾燥機
-
オートロック
-
エレベーター
- 管理費
- 15,140円
- 修繕積立金
- 16,740円
- 修繕積立基金
- -
- 間取り / 詳細
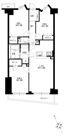
- 3LDK
- 向き
- -
- 専有面積
- 66.53㎡
- バルコニー面積
- 5.70㎡
- その他面積
- -
-
- - 所在階 / 階建て
- 2階 / 7階建
- 建物構造
- 鉄筋コンクリート
- 築年月
- 1996年3月(築30年)
- 種別
- 中古マンション
- 土地権利
- 所有権
- 土地
(敷金 / 保証金) - - / -
- 国土法届出要否
- 不要
- 接道状況
- -
- 用途地域
- 第一種住居
- 地勢
- -
- 都市計画
- -
- 現況
- 空家
- 引渡し
- 相談
- 取引態様
- 仲介
- 棟総戸数
- 48戸
- 管理形態
- 管理会社に全部委託
- 管理会社 /
管理組合有無 - (株)長谷工コミュニティ / -
- 取引条件の
有効期限 - 2026年03月21日
- 設備条件
-
- ペット相談 / リノベーション済 / フローリング / バルコニー / エレベーター / 照明器具付き / システムキッチン / バス・トイレ別 / 追焚機能浴室 / 浴室乾燥機 / 洗面台 / ユニットバス / ウォークインクロゼット / オートロック / TVモニタ付インターホン / 宅配ボックス / 防犯カメラ
- 設備(その他)
-
-
-
- 物件番号
- 100680118
- 管理コード
- -
- 建築確認番号
- -
- 情報更新日
- 2026年03月07日
- 次回更新予定日
- 2026年03月21日
- 取扱会社
-
- 氷川台支店
- 東京都練馬区羽沢3丁目32-4 【氷川台支店】
- TEL:0120-1049-15
- 東京都知事 (4) 第89541号
- 公益社団法人 全国宅地建物取引業協会会員
公益社団法人 東京都宅地建物取引業協会会員
公益社団法人 首都圏不動産公正取引協議会加盟
東京都不動産協同組合会員
-
スーパー
ビッグ・エー上池袋店
220m(3分)
-
公園
南谷端公園
300m(4分)
-
スーパー
まいばすけっと北池袋駅東店
310m(4分)
-
コンビニエンスストア
セブンイレブン上池袋4丁目店
410m(6分)
-
郵便局
西巣鴨一郵便局
570m(8分)
-
クリニック
たかのクリニック
620m(8分)
-
図書館
上池袋図書館
680m(9分)
-
ドラッグストア
どらっぐぱぱす 板橋1丁目店
700m(9分)
-
総合病院
豊島中央病院北館
730m(10分)
-
公園
上池袋東公園
810m(11分)
-
ドラッグストア
マツモトキヨシ下板橋店
1090m(14分)
- 月々の支払額
- 円
- 購入希望物件価格
-
万円
- 頭金
-
万円
- 金利
-
%
- 返済額(ボーナス1回分)
-
万円
- 返済期間
-
年
物件の特徴
セールスポイント
■販売価格/7,590万円(税込)
■間取り/3LDK
■専有面積/66.53㎡
■新規リノベーションマンションにつき快適に新生活をスタートできます
■優れた住宅を取得の際に利用可能な[フラット35S対応住宅]
■引き渡し後も安心な売主による「アフターサービス保証付」
■安心のオートロックシステム
■外出時に便利な宅配ボックス完備
■充実の設備(浴室換気乾燥機)
■ペット可(飼育細則有)
担当者のコメント
基本情報
設備条件
その他
周辺施設
支払いシミュレーション
※ボーナスは自動で年2回分で計算されます。
近隣の物件
よく見られている物件
モア・クレスト上池袋
7,590万円
15,140円
3LDK(66.53㎡)



竹村
日常の買い物や外食、余暇を楽しむ施設が揃っています。
リノベーション済みにつきご見学いただけます、お気軽にお問い合わせください♪
〈リノベーション内容〉
システムキッチン交換/洗濯水栓器具交換/ユニットバス交換/防水パン交換/洗面台交換/トイレ交換/スイッチパネル設置/全室クロス張替/ダウンライト設置/照明器具設置/下足入れ交換/全建具交換/給湯器交換/CF張替/全フローリング張替/玄関人感センサー
■優れた住宅を取得の際に利用可能な[フラット35S対応住宅]
■引き渡し後も安心な売主による「アフターサービス保証付」
■安心のオートロックシステム
■外出時に便利な宅配ボックス完備
■充実の設備(浴室換気乾燥機)
■ペット可(飼育細則有)
地域に特化したネットワークを生かしお住まい探しをサポートいたします。店内は明るくキッズコーナーも設置しております。お住まい探しは城北不動産にお気軽にお問合せください。