/
【居間・リビング】新規リフォーム済みにつき快適に新生活のスタートができます 家の中心でもあるLDKは19帖の開放感 多面開口の明るく快適な空間です
- 物件名
- 板橋区常盤台1丁目
- 価格
- 1億4,500万円~2億2,800万円
- 建物面積
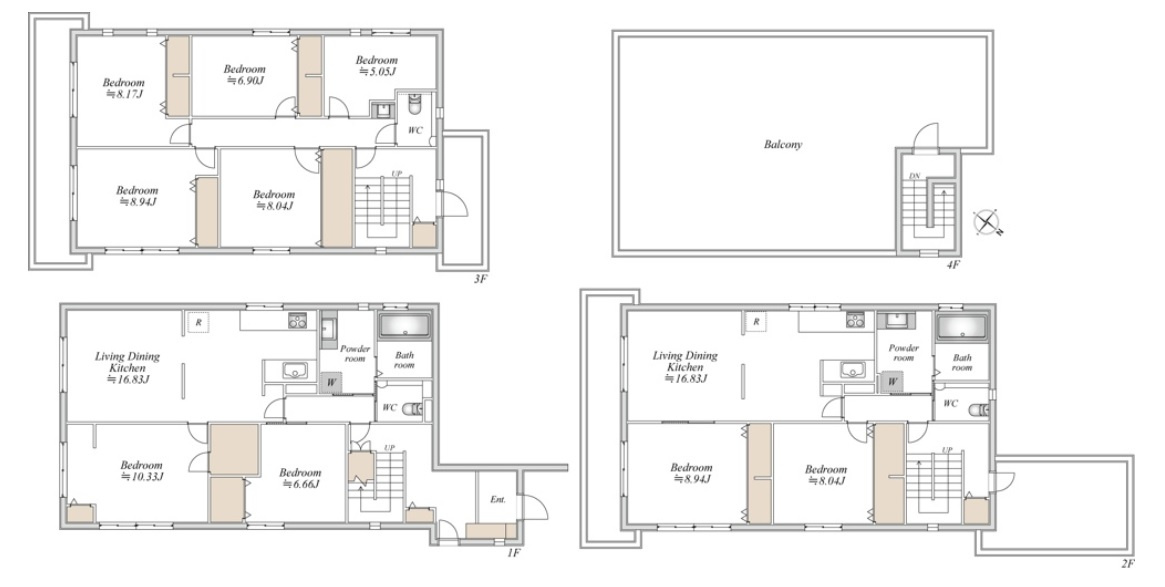
- 113.38㎡~239.10㎡
- 土地面積
- 54.49坪(180.14㎡~180.15㎡)
- 築年月
- 2005年8月(築20年)
- 総戸数
- -
- 設備条件
-
- 設備(その他)
-
-
-
- 駐車場/月額
- -/-
- 土地権利
- 所有権
- 国土法届出
- 不要
- 用途地域
- 第一種中高層住居専用
- 取引態様
- 仲介
- 引渡し
- 相談
板橋区常盤台1丁目の基本情報
板橋区常盤台1丁目の詳細情報
板橋区常盤台1丁目で募集中の物件
近隣の物件
板橋区常盤台1丁目


