【外観】新規リノベーションマンションにつき快適に新生活をスタートできます
- 物件名
- ライオンズマンション西高島平溝下公園壱番館
- 価格
- 3,790万円
- 築年月
- 1998年7月(築27年)
- 総戸数
- 33戸
- 設備条件
-
- エレベーター
- オートロック
- 宅配ボックス
- 防犯カメラ
- 設備(その他)
-
-
-
- 駐車場/月額
- -/-
- 土地権利
- 所有権
- 国土法届出
- 不要
- 用途地域
- 第一種中高層住居専用
- 戸数
- 33戸 / 1戸
- 管理形態
- 管理会社に全部委託
- 管理員の勤務形態
- 日勤
- 管理会社
- 大京アステージ
- 取引態様
- 仲介
- 引渡し
- 相談
-
公園
溝下公園
120m(2分)
-
コンビニエンスストア
セブンイレブン板橋三園1丁目
310m(4分)
-
総合病院
医療法人社団翠会成増厚生病院
310m(4分)
-
コンビニエンスストア
ファミリーマート 板橋三園
350m(5分)
-
内科
成増厚生病院内科
420m(6分)
-
公園
区立三園公園
440m(6分)
-
郵便局
高島平簡易郵便局
500m(7分)
-
スーパー
マルエツ 成増団地店
730m(10分)
-
ドラッグストア
ドラッグセイムス白子店
1160m(15分)
-
ドラッグストア
ドラッグセイムス 高島平店
1210m(16分)
-
スーパー
ヤスノC&C高島平店
1220m(16分)
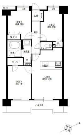
ライオンズマンション西高島平溝下公園壱番館の基本情報
ライオンズマンション西高島平溝下公園壱番館の詳細情報
ライオンズマンション西高島平溝下公園壱番館で募集中の物件
周辺施設
近隣の物件
よく見られている物件
ライオンズマンション西高島平溝下公園壱番館


