/
【外観】現地(2025年10月23日撮影)
- 物件名
- 杉並区成田西1丁目 全4区画 1号棟
- 価格
- 9,880万円
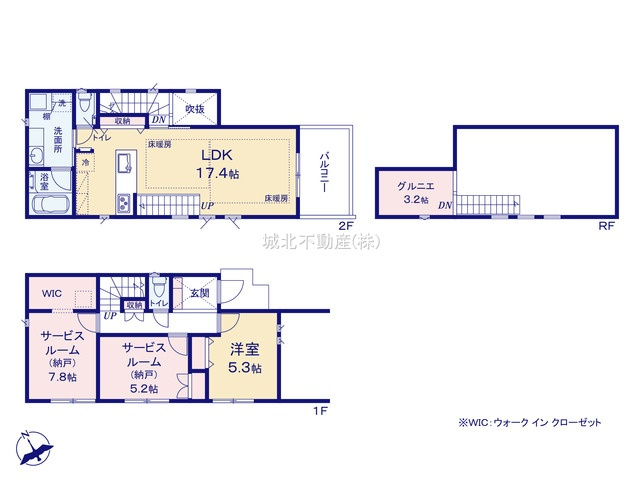
- 建物面積
- 94.33㎡
- 土地面積
- 31.68坪(104.75㎡)
- 築年月
- 2025年12月(予定)
- 総戸数
- 4戸
- 設備条件
-
- 設備(その他)
-
-
-
- 駐車場/月額
- 有/0円
- 土地権利
- 所有権
- 国土法届出
- 不要
- 用途地域
- 第一種低層住居専用
- 取引態様
- 仲介
- 引渡し
- 相談
-
保育園
杉並の家保育園
280m(4分)
-
小学校
杉並区立浜田山小学校
330m(5分)
-
コンビニエンスストア
ファミリーマート 杉並浜田山四丁目店
580m(8分)
-
スーパー
西友 浜田山店
840m(11分)
-
中学校
杉並区立東田中学校
1290m(17分)
杉並区成田西1丁目 全4区画 1号棟の基本情報
杉並区成田西1丁目 全4区画 1号棟の詳細情報
杉並区成田西1丁目 全4区画 1号棟で募集中の物件
周辺施設
近隣の物件
杉並区成田西1丁目 全4区画 1号棟


