/
【外観】
- 物件名
- 杉並区成田東1丁目 全2区画 2号地
- 価格
- 6,380万円
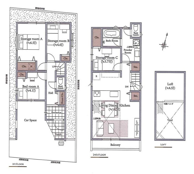
- 土地面積
- 86.10㎡
- 築年月
- -(-)
- 総区画数
- 2区画
- 設備条件
-
- 設備(その他)
-
-
-
- 駐車場/月額
- -/-
- 土地権利
- 所有権
- 国土法届出
- 不要
- 用途地域
- 第一種低層住居専用
- 区画数
- 2区画 / 2戸
- 管理形態
- -
- 管理員の勤務形態
- -
- 管理会社
- -
- 取引態様
- 仲介
- 引渡し
- 相談
- 開発許可番号
- -
-
小学校
東田小学校
350m(5分)
-
スーパー
サミットストア 成田東店
560m(7分)
-
保育園
松ノ木保育園
950m(12分)
-
中学校
杉並区立東田中学校
1000m(13分)
杉並区成田東1丁目 全2区画 2号地の基本情報
杉並区成田東1丁目 全2区画 2号地の詳細情報
杉並区成田東1丁目 全2区画 2号地で募集中の物件
周辺施設
近隣の物件
杉並区成田東1丁目 全2区画 2号地


